中文
English
Indonesia
网站首页
关于我们
产品展示
案例展示
新闻中心
联系方式
Solusi Komprehensif untuk Rak Pengangkutan Beban Berat
重载移运提架综合解决方案服务商
案例展示
案例展示
/Case
步履式架桥机
节拼项目
桅杆吊
轮胎吊
门式起重机
桥式起重机
移动模机
砼车提升
非标吊具
经典案例
/CASE
广州60吨18米
2026-04-08
安徽60吨18米
2026-04-08
四川南充60吨9米
2026-04-08
当前位置:
首页
> 案例展示
> 砼车提升
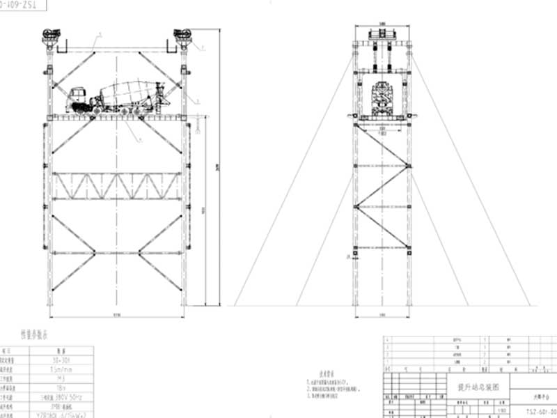
广州60吨18米
上一篇:
安徽60吨18米
下一篇:
没有了
相关文章
广州60吨18米
2026-04-08
安徽60吨18米
2026-04-08
四川南充60吨9米
2026-04-08
四川40吨10米
2026-04-08